🔑
📅
🏨

OnsStay

FINDING YOUR STAY

+97148714587

Pay in 4 interest-free payments with Tamara · Shariah-compliant

24/7 Support

Uni Estate – Elegant One Bedroom

Superhost

,
Arjan, Dubai,
verified

Entire apartment hosted by LocationsHolidayHomes

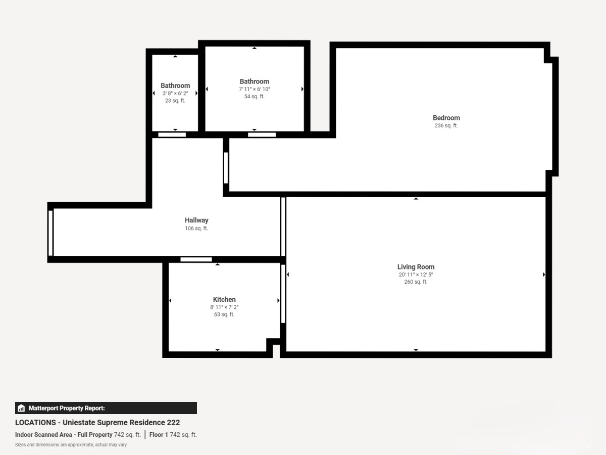
2 guests · 1 bedrooms · 1 bathrooms

blank

LocationsHolidayHomes is a Superhost

Superhosts are experienced, highly rated hosts who are committed to providing great stays for guests.

Digital E-Guide Included

Get instant access to WiFi, check-in instructions, local recommendations, and more.

Fast Response

LocationsHolidayHomes typically responds within 1 hour.

Your search results
Entire home
Apartment, Entire Home
| 1 Bedroom|

Listing Description

We are proud to present this modern one bedroom apartment located in the peaceful community of Arjan. Home to two of Dubai’s most visited parks and outside of the busy city, there are many supermarkets and restaurants nearby for guests to enjoy. You are still only a short car ride away from iconic areas such as JBR Beach, Dubai Marina, the Palm Jumeirah and exciting Downtown. Please note this area is isolated and all nearby attractions need to be reached by taxi or car.

This fresh and modern apartment is perfect for a single traveler or a couple who want to explore Dubai. It has all the amenities that you could need to ensure a comfortable stay including high-speed WiFi throughout the apartment with average speeds of 250mbps.

The open plan living and dining area features a fully equipped open plan kitchen with a fridge, oven and stove. Please note there is no dishwasher. There is a comfortable counter top dining to seat two and the living area has a comfortable sofa and lounge chair with a smart TV. There is also a guest bathroom and balcony.

The bedroom has a King-sized bed to accommodate a maximum of two guests with an en-suite bathroom stocked with hotel grade towels and essentials.

Guests can enjoy the facilities that the building offers such as swimming pool.

Points of interest nearby
Distances by car:

Jumeirah Beach Residences (Public Beach) – 17.6 km
Bluewaters Island (Ain Dubai) – 17.1 km
Kite Beach (Public Beach) – 19.2 km
Atlantis, The Palm – 20.1 km
Burj Khalifa – 21.4 km

There are many options for public transport around Dubai, we recommend the following:
– Taxi or cab that take cash or card
– You can use the Careem App to easily book private cars and taxi
– The Metro
– The Tram (going to Atlantis, The Palm)

House rules include respecting the neighbours, furniture and no parties whatsoever. Smoking allowed only on the outside terrace. Adherence to Dubai laws and regulations at all times.

This apartment is fully licensed with Dubai’s Department of Tourism and Commerce Marketing (DTCM).

Guests are required to submit soft copies of their passports prior to the check-in date. Standard check-in time is 3:00 PM and check-out no later than 11:00 AM.

Please note the included cleaning fee is for the apartment to be cleaned after your stay. If you require additional cleaning during your stay, this can be arranged for an additional fee.

We provide you with a starter pack of toiletries. Please note consumables such as cooking condiments, cleaning products and additional toiletries are not provided.

Please note that Dubai is forever growing and expanding and this means that there may be active construction within the community that may bring with it the potential for noise.

View more
Address
Address: Exact location information is provided after a booking is confirmed.
City: ,
County: United Arab Emirates
State: Dubai
Zip: 1234
Country: United Arab Emirates
Details
Property Status: verified
Property ID: 64702
Bedrooms: 1
Bathrooms: 1
Check-in Hour: 3 PM
Check-Out Hour: 11 AM
Cancellation: Guests can cancel up to 24 hours before check-in for a full refund. No payment is made to the host in case of cancellation. If the guest cancels after that with partial stay period, the host will be paid for each night stayed, plus one additional night.
Cancellation Type: flexible
License No: AL -UNI-NIZCM
Features
Amenities
Internet
Kitchen
Bed and bath
Essentials
Hair dryer
Hangers
Facilities
Gym
Smoke Detector
Other Features
Air conditioning
Baking sheet
Balcony
Body soap
Clothing storage
Coffee/tea maker
Conditioner
Cooking basics
Drying rack for clothing
Electric kettle
Elevator
Fire extinguisher
Free parking
Freezer
Hot water
Iron
Kitchen utensils
Linens
Long term stays allowed
Microwave
Oven
Private entrance
Refrigerator
Room-darkening shades
Shampoo
Single level home
Stove
Suitable for children
Suitable for infants
Swimming pool
Toaster
TV
Washing Machine
Wine glasses
Wireless

Locations Holiday Homes

See Owner Profile
Terms and Conditions
Children Allowed

What this place offers

Air conditioning
Baking sheet
Balcony
Body soap
Clothing storage
Coffee/tea maker
Conditioner
Cooking basics
Drying rack for clothing
Electric kettle
Elevator
Essentials
Fire extinguisher
Free parking
Freezer
Gym
Hair dryer
Hangers
Hot water
Internet
Iron
Kitchen
Kitchen utensils
Linens
Long term stays allowed
Microwave
Oven
Private entrance
Refrigerator
Room-darkening shades
Shampoo
Single level home
Smoke Detector
Stove
Suitable for children
Suitable for infants
Swimming pool
Toaster
TV
Washing Machine
Wine glasses
Wireless

House Rules

  • No smoking
  • No parties or events
  • Check-in: 3:00 PM
  • Checkout: 11:00 AM
  • Quiet hours: 10 PM - 8 AM

Where you'll be

x
aed-symbol 171 per night